Aller à :

  • Aller à la recherche
  • Aller au menu principal
  • Aller au contenu
0
  • Ventes
  • IMMO PRO
  • Locations
  • GESTION
  • SYNDIC
  • Estimation
  • Contact
0
  1. Accueil
  2. Vente
  3. Limoges
  4. Appartement
  5. T3
  6. T3 en hyper centre avec parking
  • Acheter Acheter
  • Louer
Créez votre alerte e-mail
Dans un rayon de
Budget
Mini €
Maxi €

    Faites estimer votre bien par un professionnel

    Estimer votre bien
    Exclusif
    Réf : 2740
    Appartement
    T3 en hyper centre avec parking
    Nombre de pièces 3
    Nombre de chambres 2
    Nombre de salles de bain 1
    145 800 €

    T3 en hyper centre avec parking Limoges (87000)

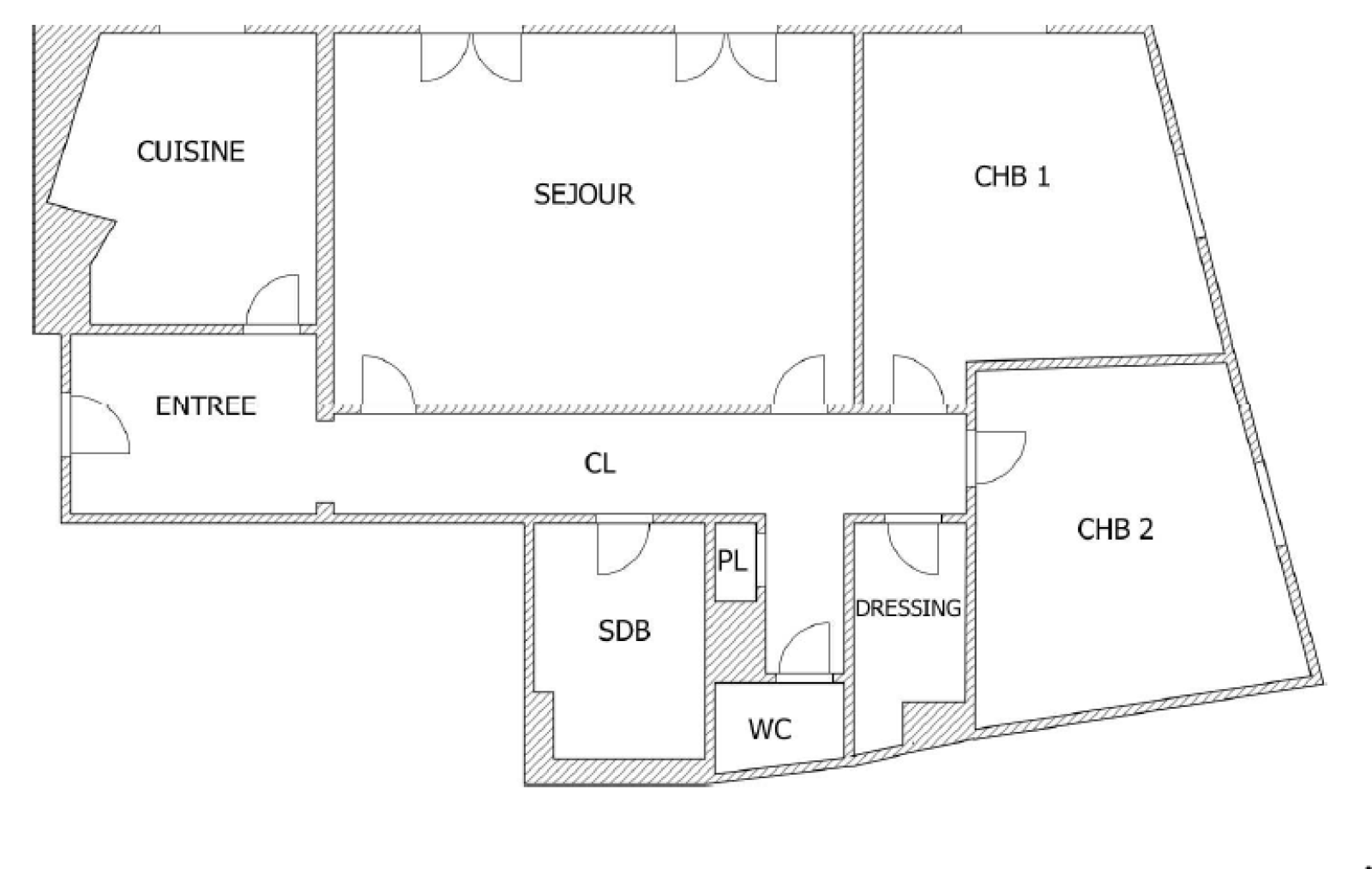
    L'agence MALLET-GUY vous propose un appartement 3 pièces de 76m² en HYPER CENTRE avec PARKING !

    Il est situé au 1er étage avec ascenseur. Il se compose d'un séjour de plus de 20m², d'une cuisine, de 2 chambres, d'un dressing, d'une salle de bain et d'un WC séparé.

    Une cave et surtout une place de stationnement couverte complètent ce bien. L'appartement nécessite des travaux de rénovation.

    Chauffage individuel au gaz.

    Bien est soumis au statut de copropriété.

    A propos de la copropriété :

    Pas de procédure en cours

    Nombre de lots : 32

    Charges annuelles 2022 : 1655.70€

    Date de réalisation du diagnostic énergétique : 11/02/2022

    DPE classe E .

    Consommation énergie primaire 236 kWh / m2 / an

    Consommation énergie finale : non communiqué.

    Le montant estimé des dépenses annuelles d'énergie pour un usage standard est compris entre 1220 et 1680 euros. 2021 étant l'année de référence des prix de l'énergie utilisés pour établir cette estimation (abonnement compris).

    Les informations sur les risques auxquels ce bien est exposé sont disponibles sur le site Géorisques : www.georisques.gouv.fr

    • Général
    • Détails +
    • Copropriété
    • Financier
    • DPE
    • Quartier
    Caractérisque Valeurs
    Code postal 87000
    Surface habitable (m²) 76,21 m²
    Nombre de chambre(s) 2
    Nombre de pièces 3
    Etage 1
    Ascenseur OUI
    Caractérisque Valeurs
    Nb de salle de bains 1
    Mode de chauffage Gaz
    Type de chauffage TRAD_TYPE_CHAUFF_CHAUDIERE
    Format de chauffage Individuel
    Interphone OUI
    Cave OUI
    Exposition Nord-Est
    Année de construction 1977
    Quartier Centre ville
    Caractérisque Valeurs
    Copropriété OUI
    Lot n° 3
    nombre de lots 32
    Quote Part annuelle des charges 1 425 €
    plan de sauvegarde NON
    statut du syndic pas de procédure en cours
    Caractérisque Valeurs
    Prix de vente honoraires TTC inclus 145 800 €
    Prix de vente honoraires TTC exclus 135 000 €
    Honoraires TTC à la charge acquéreur 8 %
    Charges 137,92 €
    DPE GES
    • Commerces et santé
    • Loisirs
    • Ecoles
    • Transports
    • Pratique
    Cette offre
    vous intéresse

    * champs obligatoires

    Les informations recueillies sur ce formulaire sont enregistrées dans un fichier informatisé par La Boite Immo agissant comme Sous-traitant du traitement pour la gestion de la clientèle/prospects de l'Agence / du Réseau qui reste Responsable du Traitement de vos Données personnelles. La base légale du traitement repose sur l'intérêt légitime de l'Agence / du Réseau. Elles sont conservées jusqu'à demande de suppression et sont destinées à l'Agence / au Réseau. Conformément à la loi « informatique et libertés », vous disposez des droits d’accès, de rectification, d’effacement, d’opposition, de limitation et de portabilité de vos données. Vous pouvez retirer votre consentement à tout moment en contactant directement l’Agence / Le Réseau. Consultez le site https://cnil.fr/fr pour plus d’informations sur vos droits. Si vous estimez, après avoir contacté l'Agence / le Réseau, que vos droits « Informatique et Libertés » ne sont pas respectés, vous pouvez adresser une réclamation à la CNIL. Nous vous informons de l’existence de la liste d'opposition au démarchage téléphonique « Bloctel », sur laquelle vous pouvez vous inscrire ici : https://www.bloctel.gouv.fr Dans le cadre de la protection des Données personnelles, nous vous invitons à ne pas inscrire de Données sensibles dans le champ de saisie libre.
    Ce site est protégé par reCAPTCHA, les Politiques de Confidentialité et les Conditions d'Utilisation de Google s'appliquent.

    Partager le bien
    Nos outils
    Imprimer Imprimer
    Calculatrice financière

    * Champ obligatoire

    Partager l'annonce

    * champs obligatoires

    Les informations recueillies sur ce formulaire sont enregistrées dans un fichier informatisé par La Boite Immo agissant comme Sous-traitant du traitement pour la gestion de la clientèle/prospects de l'Agence / du Réseau qui reste Responsable du Traitement de vos Données personnelles. La base légale du traitement repose sur l'intérêt légitime de l'Agence / du Réseau. Elles sont conservées jusqu'à demande de suppression et sont destinées à l'Agence / au Réseau. Conformément à la loi « informatique et libertés », vous disposez des droits d’accès, de rectification, d’effacement, d’opposition, de limitation et de portabilité de vos données. Vous pouvez retirer votre consentement à tout moment en contactant directement l’Agence / Le Réseau. Consultez le site https://cnil.fr/fr pour plus d’informations sur vos droits. Si vous estimez, après avoir contacté l'Agence / le Réseau, que vos droits « Informatique et Libertés » ne sont pas respectés, vous pouvez adresser une réclamation à la CNIL. Nous vous informons de l’existence de la liste d'opposition au démarchage téléphonique « Bloctel », sur laquelle vous pouvez vous inscrire ici : https://www.bloctel.gouv.fr Dans le cadre de la protection des Données personnelles, nous vous invitons à ne pas inscrire de Données sensibles dans le champ de saisie libre.
    Ce site est protégé par reCAPTCHA, les Politiques de Confidentialité et les Conditions d'Utilisation de Google s'appliquent.

    Détail des diagnostics énergétiques
    DPE GES

    Montant estimé des dépenses annuelles d'énergie de ce logement pour un usage standard est compris entre 1 220 € et 1 680 € . 2021 étant l'année de référence des prix de l'énergie utilisés pour établir cette estimation.

    Partager avec vos proches

    Facebook Facebook
    Messenger Messenger
    Twitter Twitter
    WhatsApp WhatsApp
    LinkedIn LinkedIn
    Copier le lien Copier le lien
    Se connecter
    ESPACE COPROPRIÉTAIRE ESPACE LOCATAIRE ESPACE BAILLEUR ESPACE VENDEUR
    Page d'accueil
    Adhérents

    © 2026 | Tous droits réservés | Traduction powered by Google |

    • Nos honoraires
    • Plan du site
    • Mentions légales
    • Admin
    • Nos liens
    • Politique RGPD

    Comme beaucoup, notre site utilise les cookies

    On aimerait vous accompagner pendant votre visite. En poursuivant, vous acceptez l'utilisation des cookies par ce site, afin de vous proposer des contenus adaptés et réaliser des statistiques !

    Paramétrer

    Statistiques de visites

    Pour améliorer votre expérience, on a besoin de savoir ce qui vous intéresse !
    Les données récoltées sont anonymisées.

    ?

    Google Analytics

    requis
    ?

    Google Tag Mananger

    requis
    En savoir plus
    • Acheter Acheter
    • Louer
    Créez votre alerte e-mail
    Dans un rayon de
      Budget
      Mini €
      Maxi €
      Surface
      Mini m²
      Maxi m²

      Particularites

      Equipements

      Exposition

      Afficher les biens

      Faites estimer votre bien par un professionnel

      Estimer votre bien